Mpwapwa Maternity Wing Project Proposal - DIOCESE OF MPWAPWA
Up Tanzania Mpwapwa St. Luke's Hospital The Building Surveyor WEB Site Map Mission Education 2008 Can I DO Anything?   Add to Favourites

To Navigate Nested Pages Click on the Buttons Below

Home
Mpwapwa Maternity Wing Progress Report
Mpwapwa Maternity Wing Phase 2 Progress Report
Mpwapwa Maternity Wing Phase 2 Progress Report
Mpwapwa Maternity Wing Phase 4 Progress Report
Maternity Wing Phase 5 Progress Report
Maternity Wing: Offical Opening on 8th July 2005

To Navigate Between Sections Click on the Buttons at the Top of Each Page

To Return to the Top of any Page Click on the Title Banner at the Bottom of the Page

 

DIOCESE OF MPWAPWA

(The Anglican Church of Tanzania Tanzania)

March 2004

Name of Project: Maternity Wing, St Luke’s Dispensary, Mpwapwa

An Architect's Impression

Figure 1: An Architect's Impression

The New Maternity Wing Under Construction

Location: Mpwapwa District, Dodoma Region, Tanzania

Administered by: St Luke’s Dispensary, Ving’hawe

    Diocese of Mpwapwa,

    Anglican Church of Tanzania

Contact Addresses:

Medical Coordinator: Dr Rachel Tarling,

    PO Box 2,

    Mpwapwa,

    Tanzania

Tel:    Work +255 (0)26 232 0652

E-mail stlukes@tarlings.com

WEB www.tarlings.com/st_lukes_clinic.htm

Working for: The Right Reverend Dr. Simon E. Chiwanga

    Diocesan Bishop

    Diocese of Mpwapwa (Anglican Church of Tanzania)

    PO Box 2,

    Mpwapwa,

    Tanzania

Tel: +255 (0)26 232 4123

E-mail dmp@twiga.com

 

Project requirements:

Phase I – delivery suite

Building TZS 36, 628, 200/= (£22, 893)

Equipment TZS 7,275,000/= (£4, 547)

Estimated Total for Phase I TZS 43, 903, 200/= (£27, 440)

 

Phase II – theatre

Building TZS 23, 837, 500/= (£13, 851)

Equipment TZS 12,950,000/= (£7, 525)

Estimated Total for Phase II TZS 36, 787, 500/= (£21, 376)

Grand Estimated Total TZS 80, 690, 700/= (£48, 816)

 

St Luke’s Dispensary, Mpwapwa Maternity Wing Project Proposal

INTRODUCTION

Tanzania, like many countries of the developing world, is faced with the challenge of providing adequate health services to all her people. However, available national resources, especially finance, are insufficient to implement this mammoth task. Consequently, under the Health Sector Reforms, the Government is working together with a number of other agencies to help realise this goal.

Therefore, in consultation with local Government services, this proposal seeks to strengthen efforts being made especially in terms of Maternal and Child Health Provision

BACKGROUND INFORMATION

Project Location

Mpwapwa District lies in central Tanzania, straddling the main road and railway from Dar-es-Salaam to Dodoma. The district has a size of approximately 1600 square miles, mostly consisting of flat scrubland, with a mountainous belt across the centre. It is one of the poorer areas of Tanzania, there being little in the way of light industry or cash crop cultivation. Most of the population are subsistence farmers, and approximately 90% of the people live in small rural villages. In 2000 the district had an estimated population of 239,662.

Mpwapwa town is situated in the centre of the district, with a population of about 30,000. It acts as the administrative centre for the district, with facilities such as a Bank, a Post Office, a Court House, a Veterinary Research Centre, a Secondary School and a Teacher Training College. It lies nestled into the edge of the hills, approximately 80km (about 2½ hours drive) from Dodoma.

St Luke's Clinic is situated in the village of Ving’hawe, on the outskirts of Mpwapwa town.  The village has a population of approximately 5,000, covering a fairly widespread area. About half this number is less than 15 years of age, and about a quarter are under 5.

Facilities in the village include the new All Saints Cathedral of Mpwapwa, a Primary School, and a college of English for adults. The village is served with electricity on the National Grid. It has no piped water supply, the nearest tap being approximately 2km from the village centre.

Requesting Organisation

The Diocese of Mpwapwa is part of the Anglican Church of Tanzania. It was carved out of the Diocese of Central Tanganyika, and inaugurated on 23rd June 1991. Its area fills the boundaries of the political Districts of Mpwapwa and Kongwa.

The Diocesan Bishop, the Rt. Rev. Dr. Simon E. Chiwanga, leads the Diocese. Under him is the Diocesan Secretariat. There are also sixty-four priests and one deacon, working in forty-eight parishes and fourteen sub parishes, all in rural areas. It is estimated that there are 100,000 members of the Diocese, of whom sixty percent are below the age of forty-five years.

The Diocesan secretariat comprises four officers heading the departments of Development Services, Christian Education, Finance, and Stewardship and Evangelism.

St Luke’s Dispensary is led by Dr Rachel Tarling (originally from England, serving with Crosslinks) under the Development Department of the Diocese. St Luke’s Dispensary was established in 1994. In 1998 its services expanded to include Maternal and Child Health (Under 5’s clinics, Antenatal Services and Family Planning), with a mobile clinic to 4 of the neighbouring villages, Makutupa, Bumila, Lupeta and Mang’hangu, as well as a clinic in the Bible School at Chamuhawi.

Present Health Situation

Health Statistics for the District are as follows: -

Health Indicator

District Average 1999

National Average 1995

National target by 2000

Maternal Mortality rate

298/100,000

208/100,000

100 – 200/100,000

Population/hospital

229,628

273,580

100,000

Population/health centre

114,814

50,000

n.a

Population/nursing staff

6379

1122

n.a

Population / Doctor

45,925

n.a

n.a

Mother and Child Health

Like most of Tanzania, Mpwapwa has a comparatively large proportion of its population under 5. Reliable infant mortality statistics are hard to find, as many children die in the villages without their births or deaths ever being officially registered. As information-collecting systems are improving, a clearer picture will emerge. However, because of the nature of the local environment, with most people depending on subsistence farming rather than being in paid employment or being able to produce cash crops, poverty is widespread and the maternal mortality rate and infant mortality rate, among other health indicators, are considerably higher than the national average.

Maternal statistics for those attending Health Facilities for 1999 MTUHA (65% deliveries are at home): -

Born before arrival

Deliveries at Health Facilities

 

 

 

Total deliveries (BBA and HF)

Abortive outcomes

 

Normal

Vacuum

Caesarean

All others

 

 

1107

1509

25

32

Breech 17

Decapitation 1

2691

39

Maternal Data

Post Partum Haemorrhage

Retained Placenta

3rd degree tear

Other complications

Maternal death

15

9

0

1 cervical tear

8

Causes of inpatient maternal deaths in Mpwapwa General Hospital in 1999

2 - anaemia 2y to malaria 1 – Endotoxic shock

1 – Native medicine intoxication 2 – PPH

1 – PIH (Eclamptic fits) 1 – Septicaemia 2y to retained placenta

1 – Post abortion complications 2 - Ruptured Uterus

2 - Unknown

Singleton Births

Live births

Live birth weights

 

Still births

 

Live births died

 

 

No. weighed

No. < 2.5kg

Macerated

Fresh

<24 hrs

>24 hrs

3478

3409

69

13

20

5

7

Multiple Births

Live births

Still births

 

Live births died

 

 

Macerated

Fresh

<24 hrs

>24 hrs

37

24

13

15

3

Nutrition status of under 5’s in 1999 (MTUHA) was as follows:

Weight under 60% of expected

Weight 60 – 80%

Weight over 80%

Total

1762

22.1%

4091

51.4%

2109

26.5%

7962

100%

Immunization coverage for infants in 1998 was 85%.  The majority (65%+) of deliveries occur at home, mostly because of difficulty for mothers in reaching a suitable facility to deliver. Many of these deliveries are performed by Traditional Birth Attendants, or retired nurses living in the villages, without adequate supervision, or emergency drugs, or in many cases gloves being available.

Project Aims

Our aim is to provide a facility for local mothers to deliver their babies, with trained staff, and  emergency equipment available if needed. 

The project is envisaged in two stages. The first comprises adding a delivery suite and postnatal ward to the facilities at St Luke’s Dispensary, and the second would be to add a small theatre to allow caesarean section on site for women who needed this.

The total cost of the project is around TZS 80,690,700/= (£48,816 approx), a breakdown of which is shown below

Phase I

Area Size Total area

Delivery Suite                          

            Delivery Room

            Sluice 

Post natal facilities

           Ward

            Bathroom facilities

            Office

            Staff Changing room

            Vestibule

 

8m  x 5m

3m x 3.5m

 

5m x 8m

4m x 2m

 3m x 3m

2m x 3m

2m x 7m

40 m²

9 m²

 

40 m²

8 m²

9 m²

6 m²

14.5

Total additional building needed - 128.52m² @ TZS 285,000/= per m²

Estimated Construction Cost of Building for Phase I: TZS 36, 628, 200/=

Equipment

Cost TZS

Medical Equipment

     Forceps, scissors etc

     Cupboards

     Lights

     Delivery beds x 2

     Hospital beds x 5

     Bed (Mosquito) nets

     Mattresses (4") x 5

     Bedside lockers x 4

     Cots x 6

     Bathroom equipment

Office furniture

     Desks / Tables x 2

     Chairs x 8

     Easy Chairs x 2

     Filing cabinet

     Water filters x 2

     Kettle

     Cups / plates etc

 

Estimated Cost of Equipment for Phase I

 

 

2,600,000/=

 300,000/=

150,000/=

1,400,000/=

1,250,000/=

25,000/=

140,000/=

120,000/=

150,000/=

40,000/=

 

150,000/=

120,000/=

90,000/=

 120,000/=

 240,000/=

 265,000/=

65,000/=

 50,000/=

7,275,000/=

 

Grand (estimated) total for Phase I: TZS 43, 903, 200/=

Phase II

Area Size Total area
Theatre

Changing room

Sterilisation room

Entrance area

5m x 8m

4m x 3.5m

5.5m x 4m

1.5m x 2.5m

40m²

14m²

22m²

 4m²

Total additional building 83.64m² @ TZS 285,000/= per m²

Estimated Construction Cost for phase II: TZS 23, 837, 500/=

Equipment

Cost TZS

Medical Equipment

     Operating table

     Operating Lights

     Instrument trolleys x 3

     Kick bucket

     Instruments

     Operating stools x 3

     Suction Pump

     Anaesthetic machine

     Sterilizer

     Gowns, drapes

     Sinks

     Furniture

     Changing room fittings

Estimated Cost of Equipment for Phase II

 

2,500,000/=

1,800,000/=

900,000/=

150,000/=

1,600,000/=

500,000/=

900,000/=

1,200,000/=

2,000,000/=

 250,000/=

 300,000/=

600,000/=

 250,000/=

12,950,000/=

  Grand (Estimated) total for phase II: TZS 36, 787, 500/=

Summary of costs

Phase I: TZS 43, 903, 200/=

Phase II: TZS 36, 787, 500/=

Estimated Total for both Phases: TZS 80, 690, 700/=

St Luke’s Dispensary, Mpwapwa Maternity Wing Project Proposal

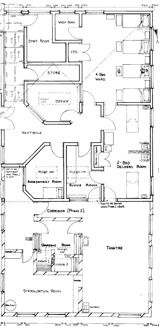
Floor Plans Showing Phases I & II

Figure 2: Floor Plans Showing Phases I & II

Section Trough Proposed Extension

Figure 3: Section Through Proposed Extension

Mpwapwa Maternity Wing Project Proposal - DIOCESE OF MPWAPWA

Tanzania | Mpwapwa | St. Luke's Clinic | The Building Surveyor | WEB Site Map | Can I Help?